Quartier „Am Rotweg“

Nichtoffener städtebaulicher Realisierungswettbewerb mit vorgeschaltetem Auswahlverfahren im Rahmen der IBA 27

Die Idee des Wettbewerb-Entwurfs ist ein nachhaltiges Stadtquartier mit hohem sozialem Anspruch, bei dem das gemeinschaftliche Leben als Teil einer robusten Nachbarschaft im Mittelpunkt steht.
Ergänzt wird das Quartier mit einer Kita, einem Gewächshaus und diversen Optionen des Miteinander: einem Quartiers Café für Begegnungen und Festivitäten, Räumen für Musik – wo es auch mal laut sein kann, einer Fahrradwerkstadt, einer Holzwerkstadt, einem Postraum – wo ankommende Pakete ihren Platz finden, einem Raum für Sport und Bewegung und geteilten Räumen fürs Arbeiten sowie eine Wasch-Bar.

GRÖSSE

25.000 BGF

ART

Internationaler Wettbewerb

STATUS

2021

Zusammen Leben im Quartier „Am Rotweg“

11 Baukörper bespielen das 20.200qm große Baufeld. Die L-förmigen Baukörper in den Ecken fassen das Quartier und bilden mit den anderen Baukörpern in der Mitte ein frei zu durchgehendes Stück Stadt.

Die Außenräume gliedern sich in eher private Höfe, eine öffentliche Durchwegung und in Quartiersplätze. Die Freiräume erfüllen neben dem Bedürfnis nach wohltuenden Aufenthaltsqualitäten auch einen Beitrag als Idee der Schwammstadt für ein gutes und gesundes Stadtklima. 

Ein Quartier für gemeinschaftliches Zusammenleben

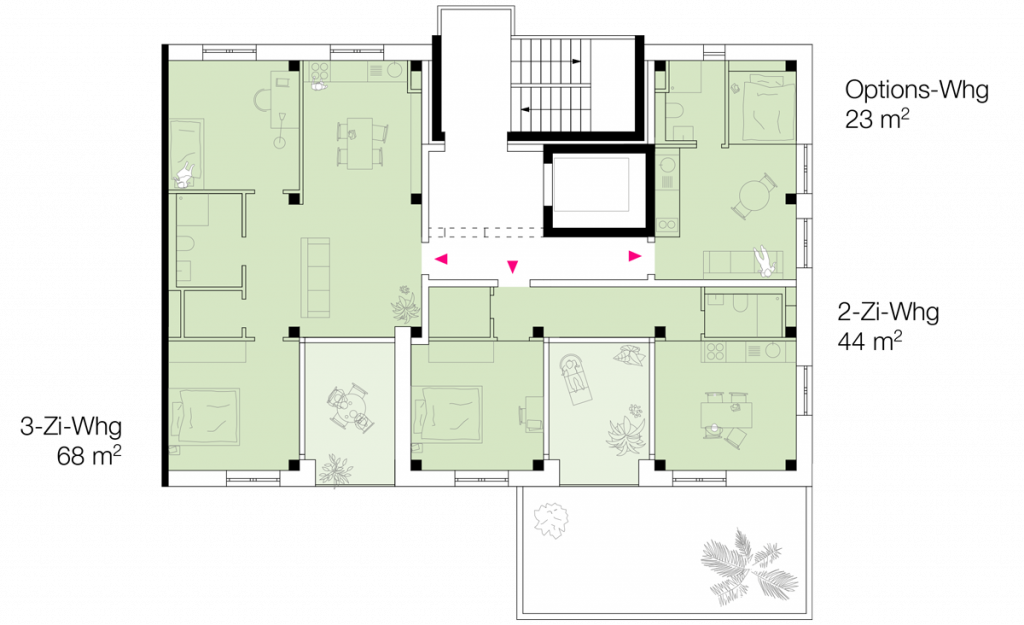
Das Quartier ist in verschiedene Bereiche gegliedert, die zusammen ein lebendiges Miteinander fördern. In Gemeinschaft zu leben, ist Grundlage des Entwurfs. Dabei ist es ein Angebot an alle Bewohner und deren Nachbarschaft. Jede Wohnung verzichtet auf 1-3qm Individualfläche pro Wohnung, die jeder trägt und so ergeben sich als Angebot an alle 500qm an gemeinschaftlicher Nutzung.

Drei Typen von Baukörpern

Die verschiedenen Baukörper-Typen werden durch ihre verschiedenen Außenräume definiert, die ein individuelles Maß von Gemeinschaft und Privatheit haben. In flexiblen Grundrissstrukturen finden neue Wohnformen, Initiativen und Lebensstile ihren Platz.

1 Typ Laube – Raumbildende Kommunikationsräume

Der Haustyp Laube wird durch eine großzügige Laubengangerschließung bestimmt, bei der sich die Erschließung mit teilprivaten Flächen vermischt. So entstehen Orte der Begegnung und Kommunikation. Dieser Typ zeichnet sich durch ein hohes Maß an gemeinschaftlichem Miteinander aus.

2 Typ Balkon – Flexibilität mit Raum für Begegnungen

Der Haustyp Balkon wird durch vor die Fassade gestellte Balkonschichten und offene Sicherheitstreppenhäuser definiert. Das Leben im Außenraum erfolgt nebeneinander mit nachbarschaftlicher Kommunikation über den „Gartenzaun“. Die offene Erschließung macht das Nutzen nach Außen sichtbar und stärkt die Verbindung von Innen und Außen.

3 Typ Loggia – ein klassisches Stadthaus

Der Haustyp Loggia zeichnet sich durch eine hohes Maß an individuellen und privaten Flächen aus. Hier ist Platz für Bewohner, welche die gemeinschaftlichen Angebote als Option sehen und den Grad der Teilnahme individuell nutzen möchten. Die Loggien ziehen sich tief in den Grundriss, belichten so die Innenräume und bilden einen gleichberechtigten Raum aus.

Die Konstruktion

Mit dem Anspruch an eine nachhaltige Bauweise sind die Häuser als Massivholzkonstruktion mit Strohballenständerwänden geplant. Beton wird nur da verwendet, wo es unbedingt notwendig und sinnvoll ist. Die Skelettbauweise mit Holz ermöglicht zudem eine Flexibilität in der Grundrissorganisation.

 

Die hybride Bauweise mit Holz und Beton setzte die Materialien Ihren Stärken entsprechend ein. Die Fassaden aus Strohballen als traditionelles Material finden ihren neuen Weg für ein nachhaltiges Bauen in der Zukunft.

Der Wettbewerb wurde von ROMED ARCHITEKTEN in Zusammenarbeit mit Anne Bruschke und Mettler Landschaftsarchitektur bearbeitet.

Auf meiner Seite danke ich Anne Bruschke, Lena Florencia Brand, Albena Kyuchukova, Sebastian Diaz de Leon und Frieder Knöller für die Unterstützung; auf der Seite von Mettler Landschaftsarchitektur Marek Langner, Claudio Bertelli und Daniel Platon. Der Dank geht ebenfalls an Modellbau Milde für das Einsatzmodell und den Initiatoren, Betreuern und allen Beteiligten dieses Wettbewerbs.